Traditional Hung Windows
Hung windows are engineered so their sashes glide vertically along separate planes, creating smooth, effortless operation. They are typically offered in two configurations: double-hung and triple-hung. Steeped in English tradition, the hung window is a defining hallmark of Colonial, Federal, and Greek Revival architecture, and it continues to grace many of North America’s most iconic homes and historic landmarks. Our hung windows unite historic authenticity with modern engineering, delivering the charm, craftsmanship, and proportions of traditional designs with exceptional performance. Available with impact ratings and capable of achieving impressive energy efficiency—even at sizes up to four feet wide and twelve feet tall—our complete line of hung windows delivers beauty without compromise.
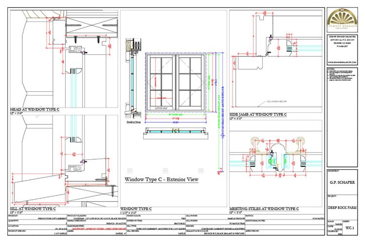
The double-hung design also incorporates two sashes, both of which are operable. This allows the bottom sash to rise and the top sash to lower, providing enhanced ventilation and greater control over airflow.
-
Custom crafted to order for each project
-
Complete design flexibility for architects and homeowners
-
Extensive profile options, including bespoke profile creation
-
Solid wood jambs without jamb liners
-
Concealed balances or traditional weights and chains with solid brass pull keys
-
Pre-finished using SBM’s premium Coastal Shield™ three-step process
-
Precision locking systems
-
Available in a variety of wood species
-
Optional true divided lites and restoration glass (not available on impact-rated units)
The triple-hung style incorporates three fully operable sashes, creating an expansive opening. In certain applications, triple-hung windows can be installed directly at floor level and function much like a door.
Hung Window Details
Built with Precision
Each component is machined using advanced CNC technology, ensuring tight tolerances and precise joinery. Because our products are made to order, we can accommodate unique design requirements while maintaining the structural integrity and durability expected from a custom window system.
Performance and Protection
Our windows can be engineered to meet demanding environmental conditions, including coastal environments and areas subject to high wind loads. Options include advanced glazing systems and impact-rated configurations designed to enhance both safety and energy performance.
Crafted for Your Architecture
Whether used as dramatic floor to ceiling windows, smaller kitchen sink windows, architectural accents, or as part of larger window assemblies, windows from Stewart Brannen Millworks are designed to complement the character of each home while providing lasting beauty and performance.
Architectural Installations
Let’s Build Something Timeless
Address:
3379 GA Hwy 46
PO Box 319
Register, Georgia 30452
Phone: 912-259-9770
Fax: 912-259-9446
Email: sales@brannenmillwork.com



Our hung windows use solid brass sash locks that automatically draw the meeting rails together when engaged. This meeting-rail locking system creates a secure, weather-resistant seal. Double-hung windows come standard with one locking bolt, with the option for two depending on the window size.
We offer a full range of custom sizes and shapes to meet the specific requirements of each project. Impact-rated units are subject to maximum tested size limitations. Exterior color-matched wood screens or extruded aluminum screens are available with charcoal fiberglass, bronze, or stainless steel mesh to complement your project’s aesthetic and performance needs.